仲介物件

オススメの仲介物件をお届けします

一般財団法人 不動産流通支援機構会員

住宅ローンの滞納、延滞、破綻、督促状、差押、競売、担保割れ・・・

任意売却の専門家であるリエゾン株式会社がスムーズに解決します!

仲介物件情報 最終更新日 2026年04月27日

新築一戸建て
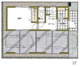
名古屋市昭和区吹上 3LDK+S (60.35㎡)
昭和区吹上戸建 2号棟 新築一戸建て
昭和区吹上戸建 2号棟
5,380万円

ビルトイン車庫(2台可) ※車庫面積:21.12㎡

物件番号 20260205-2
最終更新日 2026年02月12日

※クリックすると拡大します

物件一覧へ戻る
相談無料・着手金なし
  • お電話でのお問合せ
  • メールでのお問合せ
物件番号
20260205-2
物件名
昭和区吹上戸建 2号棟
物件価格
5,380万円
所在地
名古屋市昭和区吹上町1丁目32番1
交通
地下鉄桜通線 / 吹上駅 徒歩8分
土地面積
60.35㎡
建物面積
121.73㎡
間取り
3LDK+S
建ぺい率
60%
容積率
200%
築年月
2026年4月中旬(予定)
構造
木造
管理形態
-
都市計画
市街化区域
用途地域
第一種住居地域
地目
宅地
土地の権利
所有権
法令上の制限
準防火地域
その他制限事項
31m高度地区・緑化地域・都市機能誘導区域内・居住誘導区域内(要安全配慮区域)
入居可能日
不可
ペットの飼育
不可
現況
未完成
リフォーム
-
引渡し
2026年4月中旬(予定)
備考
中部電力・都市ガス・公営水道・公共下水
物件一覧へ戻る
相談無料・着手金なし
  • お電話でのお問合せ
  • メールでのお問合せ

PAGE TOP